George's AOL Home Page
George's Shuttle Model AOL Page
RBGliders AOL Home Page
Stiletto-D Slide-Wing Rocket Glider

 

RBG Home Page

George's Home Page
R/C Gliders Page (Original Page)

The Stiletto Series of Slide-Wing Rocket Gliders have been made in sizes ranging from 1/2A to D size.

To see the Stiletto-B and Stiletto-C versions, go to the Contest Plans Page.

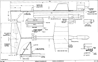
The Stiletto-D plan was printed in the July 1984 issue of the "Impact" newsletter, and the May 1985 issue of the NAR's American Spacemodeling Magazine (Now Sport Rocketry Magazine). The plan and article from American Spacemodeling is used here with permission. The plan printed in American Spacemodeling was redrawn by John Pursley

With NARAM-42 holding D R/G, and no doubt many meets that will hold D R/G as well for practice before NARAM, this plan is being posted on the web for reference by those who want to get some ideas on how to build a similar model or even an exact copy.

The main plan was printed in an 11 x 17 layout. It is included at the top of this web page. It was originally drawn at 1/2 scale but it is left to you the computer user to work out the actual size as printed or as appearing onscreen (It was scanned at 150 DPI).

The written article that went with the plan is included as a GIF file. Print it out, choosing whatever options you need to make it print at maximum size on one page. It'll be somewhat more readable that way than onscreen.

The wing was built-up as per the method I used for building R/C RBG's at the time, 1983-84. An alternative to a built-up wing would be to use medium 1/4" balsa or light 3/8" balsa for a solid wing, along with a lot of carving and sanding to shape.

As pointed out by Andy Eng, you could build a solid-wing version first .And if you like what you see when you fly it, but want to get more performance then you could make a built-up lighter verison of the wing and swap wings easily.

The Stiletto-D can fly on a D12 but it is "hot". It flew best on a D7, which was an expendable short version of the E6. But the D7 stopped production by the latter part of the 1980's. Now, the D7 reload for the 24mm "RC" casings is virtually the same as the original D7 as far as thrust curve, but aside from running the risk of losing the reload casing a person would have to come up with some means to trigger the wing to slide, due to the lack of an ejection charge.

Lacking the old D7, the motors choices are less than ideal. Either a D12-3, or a C10-4. I'm not too comfortable with the Stiletto-D flying on a D12 to begin with, once one shredding a built-up wing although it was using a crashed R/C model's wingtips for the wing panels and it was therefore built lighter/weaker than a purpose-built Stiletto-D wing.

A D10 will cause the model to boost even faster and undergo greater stress. Yes, it has a lower average thrust than a D12 but the thrust curve is a regressive type that results in much more acceleration in the early part of the burn than a D12, producing a higher maximum velocity than a D12. But a strong enough Stiletto-D on a D10 would be a pretty potent combination if it boosts straight enough.

The more adventurous could try to produce a similar effect to the D7 by using a twin engine cluster of C4's. But, ah, "lots of luck" igniting twin C4's.

Last option is a D3. Its low thrust and very long burn time is not suited to a model of this size. A person trying a D3 slide-wing should make something somewhat smaller and lighter. And trim it in such a manner to be sure it will roll slowly on boost without spiraling in on glide.

 

 

 

 

 Back to Top

George's AOL Home Page
George's Shuttle Model AOL Page
RBGliders AOL Home Page